Witamy na stronie Transinfo.pl Nie widzisz tego artykułu, bo blokujesz reklamy, korzystając z Adblocka. Oto co możesz zrobić: Wypróbuj subskrypcję TransInfo.pl (już od 15 zł za rok), która ograniczy Ci reklamy i nie zobaczysz tego komunikatu Już subskrybujesz TransInfo.pl? Zaloguj się

PKS Polonus zabiera się w końcu za dworzec autobusowy Warszawa Zachodnia. Od zadaszeń

infobus
08.07.2024 19:03
0 Komentarzy

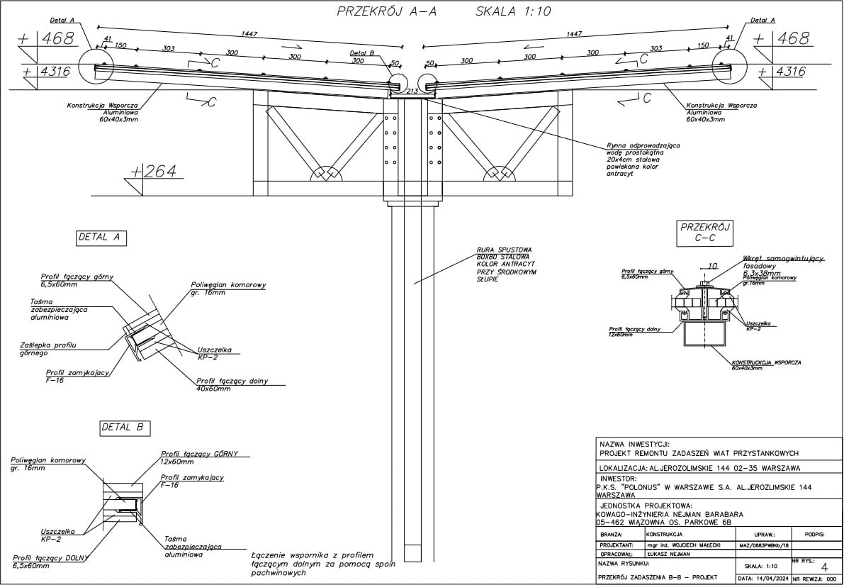
3 lipca Przedsiębiorstwo Komunikacji Samochodowej Polonus ogłosiło przetarg na wykonanie 9 zadaszeń wiat przystankowych na stanowiskach odjazdowych Dworca Autobusowego Warszawa Zachodnia.

Warszawa Zachodnia to jeden z największych dworców autobusowych w Polsce. Codziennie obsługuje setki autobusów i ponad 2 miliony pasażerów rocznie. Mimo że mógłby być wizytówką stolicy, od lat pozostaje w złym stanie – brakuje zadaszenia, infrastruktura jest zaniedbana, a cały obiekt przypomina stan z lat 80. Teraz coś jednak drgnęło.

Spis treści:

  1. Jakie dokładnie wymagania techniczne muszą spełniać zadaszenia wiat przystankowych na Dworcu Autobusowym Warszawa Zachodnia?
  2. Jakie są główne kryteria oceny ofert w przetargu na wykonanie zadaszeń wiat przystankowych?
  3. Czy planowana modernizacja dworca obejmuje również inne elementy infrastruktury poza zadaszeniami wiat przystankowych?
PKS Polonus zamawia zadaszenia do autobusowego dworca Warszawa Zachodnia
PKS Polonus zamawia zadaszenia do autobusowego dworca Warszawa Zachodnia

Szczegóły przetargu

Przedsiębiorstwo Komunikacji Samochodowej Polonus ogłosiło przetarg na wykonanie 9 zadaszeń wiat przystankowych na stanowiskach odjazdowych Dworca Autobusowego Warszawa Zachodnia.

Kluczowe daty to:

  • Termin składania ofert: 6 sierpnia 2024 roku do godziny 12:00
  • Termin otwarcia ofert: 6 sierpnia 2024 roku o godzinie 12:30
  • Termin związania ofertą: 30 dni od dnia złożenia

LINK do przetargu.

PKS Polonus zamawia zadaszenia do autobusowego dworca Warszawa Zachodnia
PKS Polonus zamawia zadaszenia do autobusowego dworca Warszawa Zachodnia

Warszawa Zachodnia

Tylko w kwietniu br. Dworzec Autobusowy Warszawa Zachodnia obsłużył około 185 tysięcy pasażerów, czyli niewiele mniej niż w analogicznym okresie w 2014 roku (ok. 200 tys.).

Średnio każdego dnia odjeżdża stąd blisko 500 autobusów obsługiwanych przez 123 firmy przewozowe. W skali roku to grubo ponad 2 mln podróżnych. Najpopularniejszym kierunkiem podróży jest Ukraina.

Tym samym Warszawa Zachodnia to jeden z największych dworców autobusowych w Polsce, ale od lat pozostaje w złym stanie. „Dramat, wstyd dla Warszawy, koszmar” – tak komentują jego stan mieszkańcy, podróżni oraz przewoźnicy. W 2022 roku właściciel dworca, państwowa spółka PKS Polonus, ogłosił plan dużej inwestycji obejmującej budowę nowego dworca. Prace jednak jeszcze się nie rozpoczęły, ponieważ firma wciąż czeka na wydanie warunków zabudowy.

Teraz coś jednak drgnęło, natomiast zrobienie zadaszeń to tylko kropla w morzu potrzeb. Michał Leman, dyrektor zarządzający we FlixBus Polska, określa Warszawę Zachodnią jako „najgorszy dworzec w Polsce” pod względem infrastruktury, zwracając uwagę na brak zadaszenia, niewystarczającą liczbę peronów i miejsc parkingowych.

Szef FlixBusa podkreśla również potrzebę konsultacji z przewoźnikami przy planowaniu modernizacji, aby uniknąć problemów jak te, które wystąpiły na nowym dworcu w Krakowie.

PKS Polonus zamawia zadaszenia do autobusowego dworca Warszawa Zachodnia
PKS Polonus zamawia zadaszenia do autobusowego dworca Warszawa Zachodnia

Plany modernizacji

Wcześniej PKS Polonus planował budowę zupełnie nowego budynku dworca autobusowego, ale proces jest opóźniony z powodu trudności w uzyskaniu decyzji o warunkach zabudowy. Nowa koncepcja zakładała budynek wielofunkcyjny z połączeniem z tunelem kolejowym i tramwajem podziemnym na kondygnacji -1 oraz atrakcyjną przestrzenią publiczną przed budynkiem.

Nowy budynek miał mieć kondygnacje -1, 0 i +1 przeznaczone na funkcje dworca, usługi komercyjne i gastronomiczne. Kondygnacja +2 będzie mieściła biura, część konferencyjną i hotelową z restauracją oraz zielony ogród na dziedzińcu.

Modernizacja Dworca Autobusowego Warszawa Zachodnia jest konieczna, aby sprostać rosnącym wymaganiom pasażerów i przewoźników. Nowy przetarg na wykonanie zadaszeń wiat przystankowych to pierwszy krok w kierunku poprawy infrastruktury dworca, aczkolwiek bardzie to przypomina konieczny remont niż poważna inwestycję.

Komentarze